Дизайн-проект квартиры в ЖК Гранд Парк
Квартира в ЖК «Гран Парк» г. Оренбург
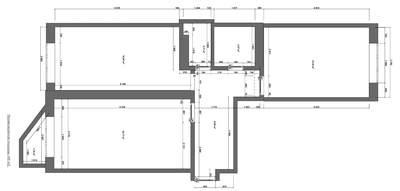
Площадь: 70 м²
Стадия — заканчивается ремонт
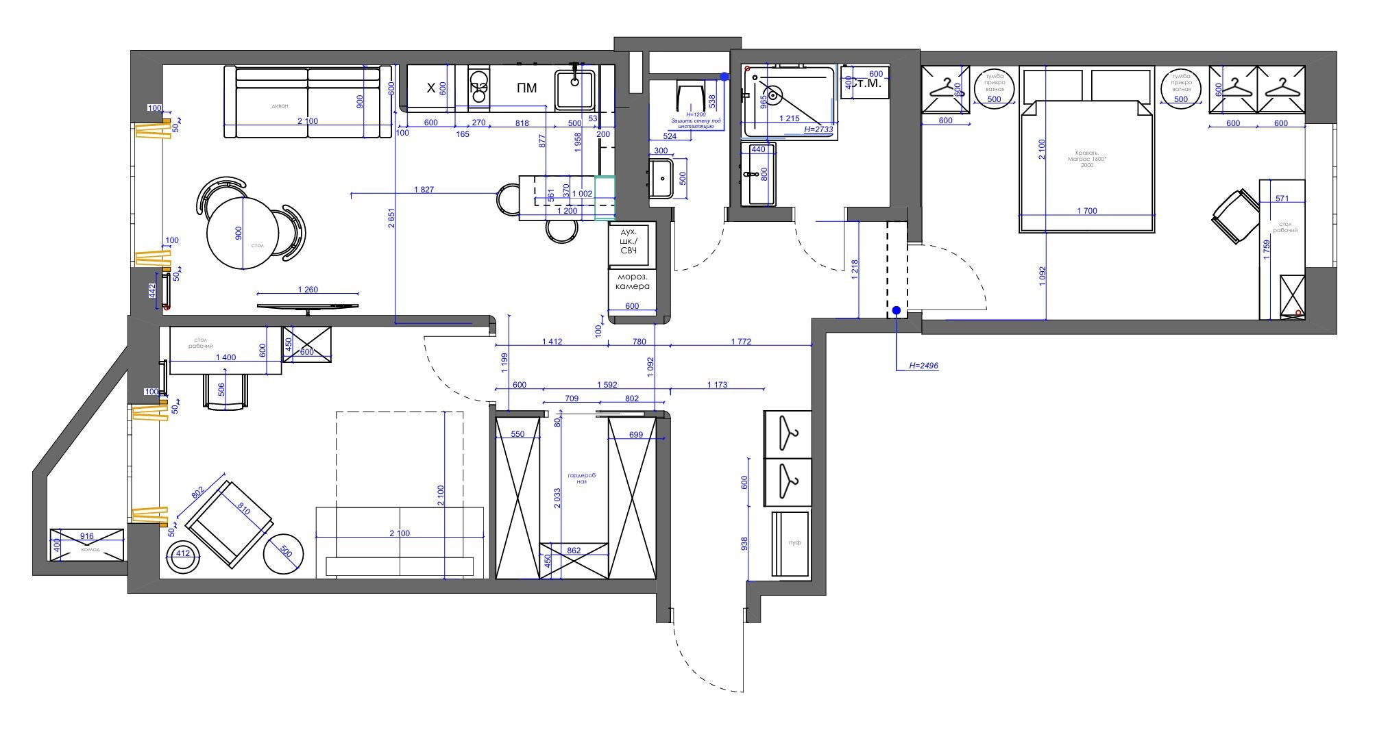
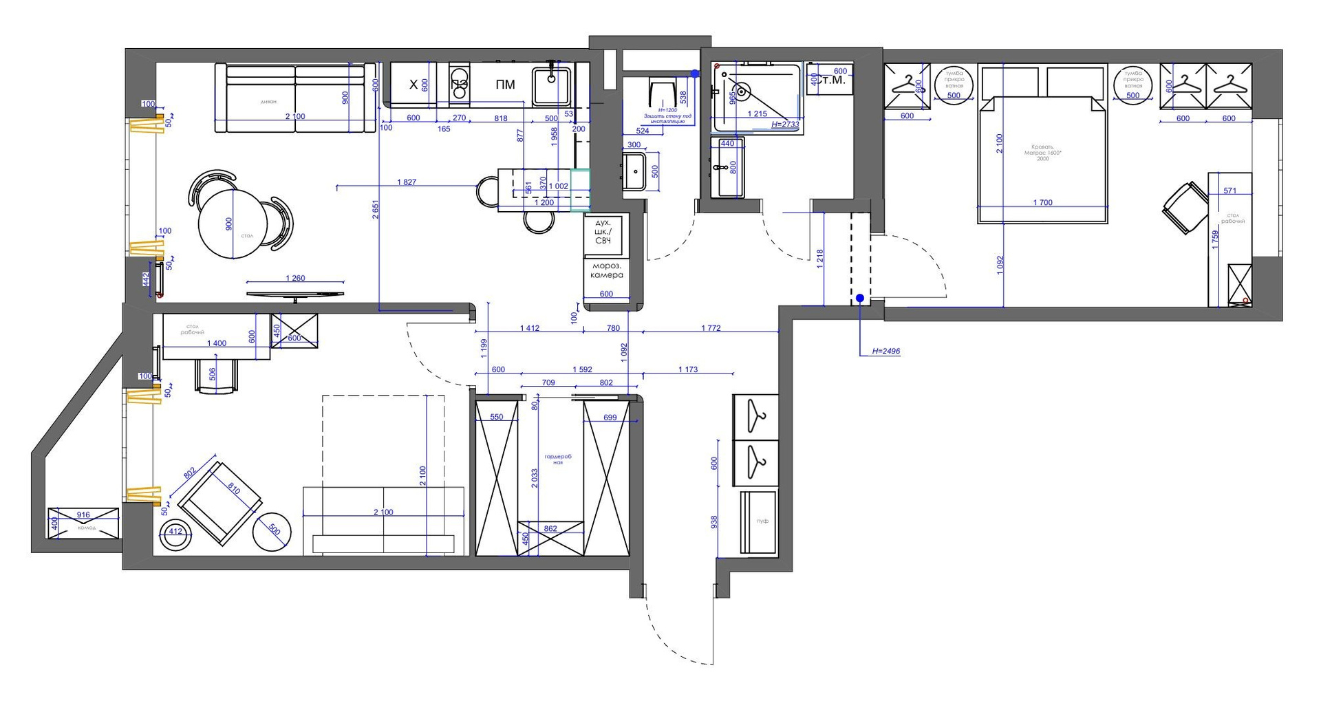
1 Кухня-Гостиная 1 Спальня 1 Кабинет 1 Туалетная комната 1 Душевая
Заказчики, семейная пара. Любят путешествовать, искусство, книги. Не боятся экспериментов и цвета. Открыты ко всему новому и готовы обсудить любые креативные идеи.


























































