Лофт в ТаунХаусе. 1 этаж
Локация: Оренбург, пос. Подгородняя Покровка
Площадь: 140 м²
1 Спальня 1 Кабинет 2 Санузла
Двухэтажный Таун Хаус с подвалом и тремя лестницами, в кирпичном доме советских времен.
Заказчиком на тот момент был одинокий мужчина. Пожелания заказчика: сделать удобный уютный современный интерьер с деталями в стиле лофт. Решить все инженерные вопросы и подчеркнуть архитектуру объекта.
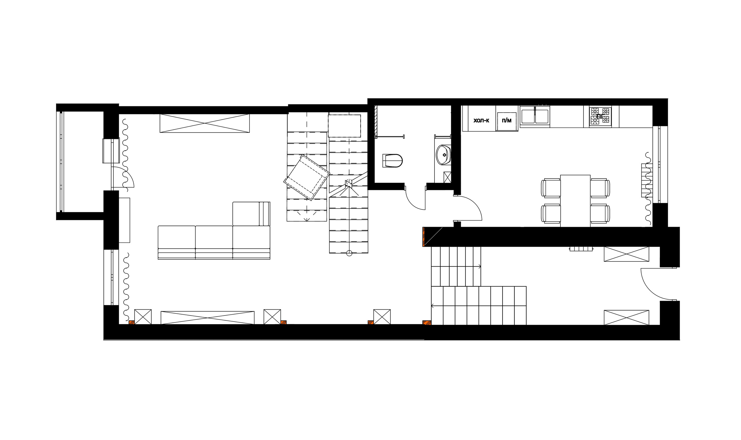
Изначально на объекте все было, как в хрущевках.
Изолированные комнаты, коридоры, лестница из монолитного бетона, как в подъезде. В ходе работ мы снесли перегородку между холлом и гостиной, холлом и входной группой. Объединили эти помещения, открыли лестницы и впустили воздух, сделали панорамными окна. Установили новую лестницу на моно косоуре с коваными черными ограждениями, и как следствие, в подлестничном пространстве выстроили печную конструкцию с био-камином. Входную дверь выделили красным кирпичным с арочной фрамугой сверху.
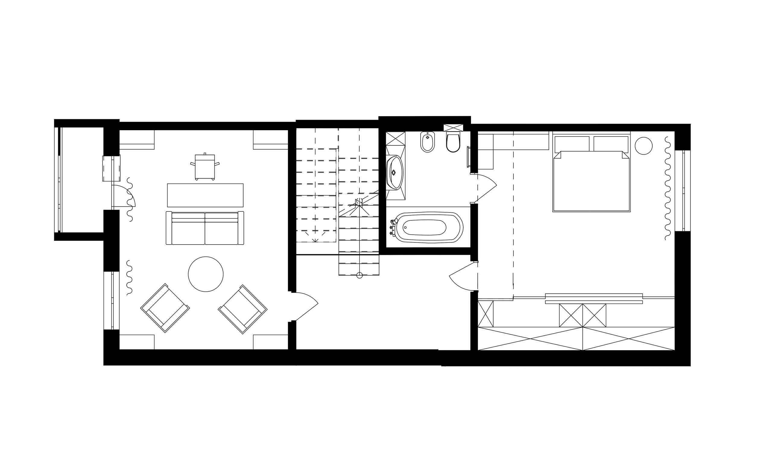
На втором этаже нам удалось сделать мастер-спальню. Вход ванную из коридора мы перенесли в спальню, а часть комнаты отдали под гардеробную. По соседству расположился кабинет с намеком на английский стиль. У заказчика внушительная библиотека, для нее мы выстроили шкафы-витрины по обе стороны комнаты друг напротив друга. По центру разместили диванную группу и рабочий стол. На стены наклеили панно от английского дизайнер Andrew Martin, а на конах повесили портьеры этого же бренда. На первом этаже мы разместили душевую в сложном зеленом цвете, в том же, что и кабинет. А в ванной комнате при спальне установили отдельностоящую ванную и выкрасили стены в синий.
Комплектация объекта осуществлялось совместно с Томиной Лилией


































